2842 46 N 9th Street, Philadelphia, PA 19133

$499,000
  • 2842 46 N 9th Street, Philadelphia, PA 19133 Main Photo

17 Total Photos [Click to View All]

LOT SIZE 0.290 acres MLS#PAPH2494224
STATUSACTIVE PROPERTY TYPELand - Lot/Land SUBDIVISIONFAIRHILL SCHOOLTHE SCHOOL DISTRICT OF PHILADELPHIA

Property Description

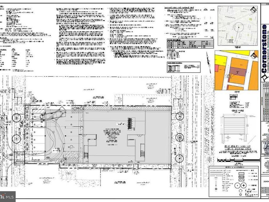
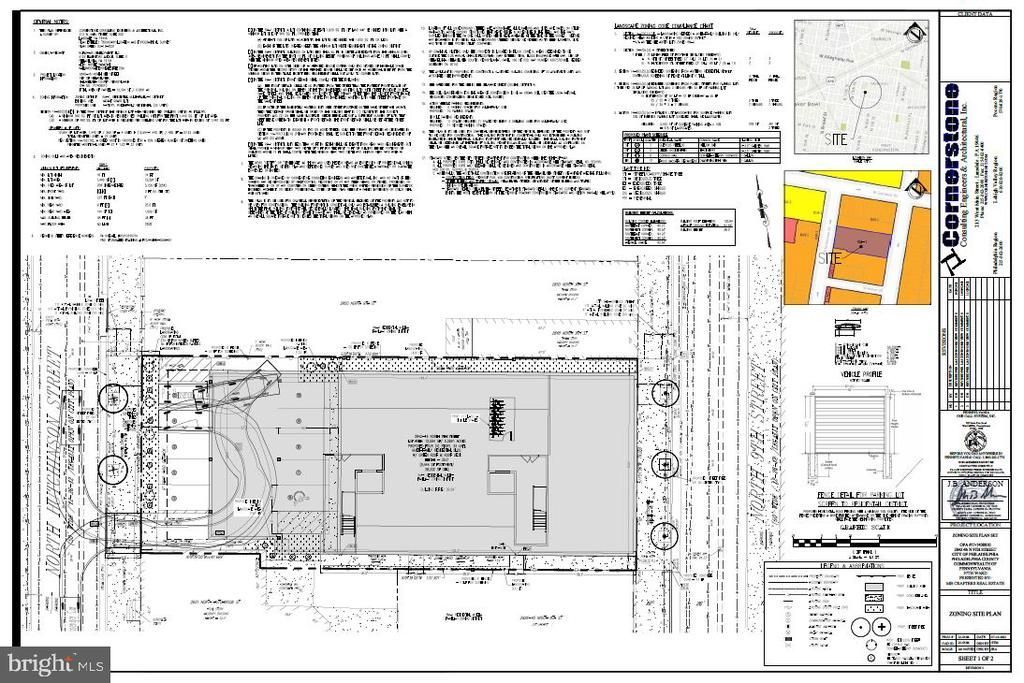
Incredible opportunity to acquire a 12,594 SQFT RM-1 zoned vacant lot in the Fairhill neighborhood of North Philadelphia, fully approved and ready for immediate development. This site comes with professionally designed plans for a 33-unit multi-family building featuring a mix of 1, 2, and 3 bedroom units, including accessible units, elevator access, roof deck, green roof, 10 off-street parking spaces, an interior bike room, and a mail/package room — tailored for modern urban living. The lot includes a full package of approvals and documentation: zoning permit, street approval, post-construction stormwater plan, complete ERSA plan, and environmental testing already completed — reducing risk and fast-tracking your development timeline. Ideally located near the Broad Street Line, this site offers convenient access to North Philadelphia Station, with direct transit from NRG Station to Fern Rock TC. With housing demand growing in this part of the city, this lot is positioned perfectly for a forward-thinking developer or investor ready to break ground. This is your chance to secure a fully entitled development opportunity with strong upside in one of Philly’s rapidly evolving neighborhoods. Drive by and make an offer!

2842 46 N 9th Street | MLS# PAPH2494224

This land located at 2842 46 N 9th Street, Philadelphia, PA 19133 is currently listed for sale with an asking price of $499,000. The property has approximately 0.29 Acres. 46 N 9th Street is located within the THE SCHOOL DISTRICT OF PHILADELPHIA school district. Search Philadelphia real estate on www.hankinshomes.com today.

Property Features

Property Type: Land - Lot/Land
Lot Size: 0.29 Acres
Taxes: $1,878

Feature Descriptions

Fencing: Chain Link, Cyclone
Location: Urban
Lot Dimensions: 0.29 Acre(S)
Municipality: PHILADELPHIA
Sewer: Public Sewer
Special View Info: Street
Water: Public

Local Schools

School District: THE SCHOOL DISTRICT OF PHILADELPHIA

Listed By / Shown By

Listed By

Agency Name: LPT Realty, LLC
Agency Phone: 8773662213

IDX logo

Estimate Your Payment

Estimated Payment

$ 1,412.60 per month $1,110.56 Principal & Interest $156.50 Property Tax $145.54 Homeowner's Insurance

Change Payment Information

%
years/fixed
yearly
yearly (est.)
(Monthly PMI fees could increase payment if above 80% LTV)
Getting pre-qualified is the first step to buying a home! GET PREQUALIFIED NOW Home Mortgage Logo

Login to Saved Search

Pixel